Let Agreed

Abbotsford Lodge Canniesburn Road

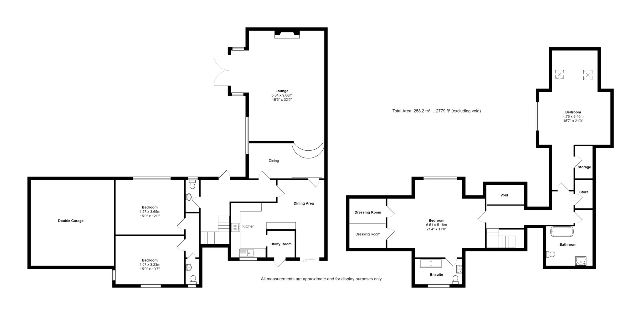
Photo GalleryFloor PlansVirtual Tour Council Tax Band
3 bedroom detached villa for rent
Abbotsford Lodge Canniesburn Road, Glasgow, G61 1PX
£2,500 pcm

Key Features

  • Detached Villa
  • Furnished to High Standard
  • Home Cinema
  • Double garage. Private gardens. Gas ch
  • L/L reg 602771/200/10101. EER Band D

Property Description

Abbotsford Lodge is a much admired three bedroom Detached Villa set amidst low maintenance gardens in a central location close to Canniesburn.

The property is in excellent order both inside and out and is finished with a lovely blonde sandstone exterior beneath a steep natural slate roof.

Internally the property has impressive accommodation extending to over 2500 sq feet which makes it an excellent family home.

The ground floor comprises entrance hallway, open plan lounge/living room which is where the original lodge house was and comprises a 32 ft lounge area with focal point fireplace, raised dining area to the far side and french doors opening to the front garden. Separate dining/breakfasting room with doors opening to the rear decked garden and adjacent to this room is a lovely fitted kitchen with separate utility room. Completing the ground floor is a fabulous Sony Home Cinema Room, office/study/ bedroom three and separate wc.

On the upper level a galleried landing provides access to two large double bedrooms, one with a modern upgraded en suite shower room and large walk in dressing room. At the far end of the landing is a second modern bathroom with three piece suite including a roll top bath.

Double car garage with twin access doors. The large monobloc driveway to the front offers parking for several vehicles and adjacent to this is a very large maintained garden with a variety of shrubs and bushes.

The property is well placed for a full range of local amenities including excellent shopping and is a short walk from Bearsden Train Station and is also close to Bearsden Cross with its attractive bars, restaurants and cafes. There are a number of highly rated Schools at both Primary and Secondary levels as well as several private gyms and well respected golf courses. Furnished to a high level.

Landlord Reg No 602771/200/10101. EER Band D. Letting Agent Registration Number 2508001

Branch

Glasgow

Melville House, 70 Drymen Road, Glasgow,
G61 2RH
Tel: 0141 943 1110
Email: enquiries@propertybureau.co.uk

Email us your Enquiry

To arrange to view, download the "Home Report" or to ask a question about this property - simply enter your details below.


Similar Properties

Property Bureau
Privacy Overview

This website uses cookies so that we can provide you with the best user experience possible. Cookie information is stored in your browser and performs functions such as recognising you when you return to our website and helping our team to understand which sections of the website you find most interesting and useful.

This website also uses Google Analytics to collect anonymous information such as the number of visitors to the site, and the most popular pages.

By continuing to use this website, you agree to their use.