Sold STC

11 St. Mungo's Crescent

Photo GalleryFloor PlansBrochureVirtual Tour Home ReportCouncil Tax Band
2 bedroom flat for sale
11 St. Mungo's Crescent, Carfin, ML1 4BB
Offers Over £115,000

Key Features

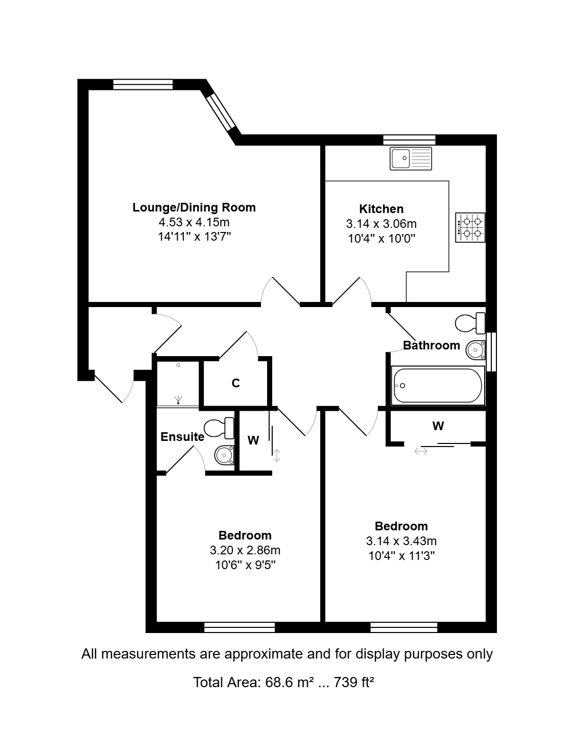
  • Very nice Modern 1st Floor Flat
  • Large main lounge/dining room
  • Spacioys modern fitted kitchen
  • 2 double bedrooms (master en suite)
  • Bathroom. Gas ch. Double glazing
  • Great location for amenities and access to motorway

Property Description

*** SOLD at closing date ***

This attractive and spacious Modern 2 bedroom Apartment is situated on the preferred 1st floor of a well maintained building in a popular development close to a range of excellent amenities.


The building itself is finished with a combination of render and facing brick beneath a hipped, concrete tiled roof. Entry is via a security controlled main door with stairs leading to all levels and no 11 being easily accessed on the first floor.

At the rear of the building there are ample resident and visitor parking spaces, sheltered bin store and a neat selection of well maintained shrubs and plants.


Internally the apartment has an excellent layout and would be a perfect first time buy or indeed a popular buy to let investment as it has nice sized apartments, is in good order throughout with neutral decoration and has a fresh, modern interior.


The accommodation comprises entrance vestibule with door through to a good sized hallway with walk in storage cupboard to one side.

The main lounge/living room is an excellent size and has a bay window at the front providing an open view and at the far side of the room there is ample space for a dining table. The room is freshly decorated and has a quality laminate floor.

Breakfasting sized kitchen which has a range of modern floor and wall storage units with integrated hob and oven and and a built in sink and drainer. Plumbing for washing machine and space for fridge freezer with ample worktop surface area and a window to the front giving a nice open view.

There are two great sized bedrooms, both with built in wardrobes and master with en suite shower room which comprises shower enclosure, wash hand basin and w.c.

The main bathroom also has a nice modern suite comprising panelled bath with wall mounted mains shower, wash hand basin and w.c. Window to the side.

The property further benefits from gas central heating, double glazing and security controlled entry.






Carfin sits on the edge of Motherwell, near the Ravenscraig development which offers a regional sports facility. This emerging suburb features a convenient retail park that includes shopping options and a coffee shop, and there are a number of primary and secondary schools within easy reach. Its convenient access to the M74 and M8 motorways, as well as mainline train stations in Carfin and Motherwell, makes it an ideal spot for commuters.

Branch

Lanarkshire

13 Broomknoll Street, Lanarkshire,
ML6 6BN
Tel: 01236 758111
Email: enquiries@propertybureau.co.uk

Email us your Enquiry

To arrange to view, download the "Home Report" or to ask a question about this property - simply enter your details below.


Similar Properties

Property Bureau
Privacy Overview

This website uses cookies so that we can provide you with the best user experience possible. Cookie information is stored in your browser and performs functions such as recognising you when you return to our website and helping our team to understand which sections of the website you find most interesting and useful.

This website also uses Google Analytics to collect anonymous information such as the number of visitors to the site, and the most popular pages.

By continuing to use this website, you agree to their use.